
Pittsburgh
Dieses moderne Flachdachhaus erhält seinen besonderen Charakter durch versetzt angeordnete Kuben. Großzügig verteilen sich 218 m² Wohnfläche auf 2 Geschossen. Im Erdgeschoss findet man den offenen und hell gestalteten Wohn-, Ess- und Kochbereich, ein zusätzliches Zimmer zum Arbeiten oder für Gäste, sowie ein Hauswirtschafts- und Vorratsraum und ein Technikraum mit direktem Zugang zur Doppelgarage. Im Obergeschoss befindet sich der private Bereich der Hausbewohner: 3 Schlafzimmer mit zeitgemäßer Anordnung von Bädern und Ankleiden.
Preis ab: Euro
qm Wohnfläche

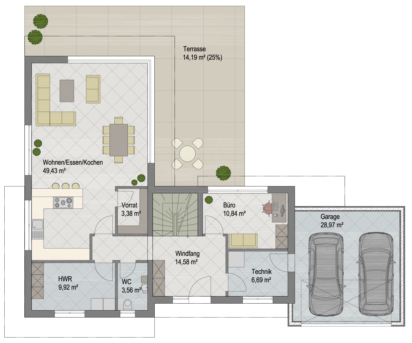
Erdgeschoss
Wohnfläche EG: 112,59 m²

Wohnen/Essen/Kochen 49,43 m²
Vorrat 3,38 m²
WC 3,56 m²
HWR 9,92 m²
Büro 10,84 m²
Windfang 14,58 m²
Technik 6,69 m²
Terrasse(25%) 14,19 m²
Garage 28,97 m²
Vorrat 3,38 m²
WC 3,56 m²
HWR 9,92 m²
Büro 10,84 m²
Windfang 14,58 m²
Technik 6,69 m²
Terrasse(25%) 14,19 m²
Garage 28,97 m²
Dachgeschoss
Wohnfläche DG: 105,21 m²

Flur 4,80 m²
Eltern 17,98 m²
Ankleide I 18,49 m²
Bad 9,39 m²
Bad Kinder 8,61 m²
Kind 2 17,43 m²
Ankleide 3,56 m²
Kind 1 14,24 m²
Ankleide II 7,13 m²
Balkon (25%) 3,58 m²
Eltern 17,98 m²
Ankleide I 18,49 m²
Bad 9,39 m²
Bad Kinder 8,61 m²
Kind 2 17,43 m²
Ankleide 3,56 m²
Kind 1 14,24 m²
Ankleide II 7,13 m²
Balkon (25%) 3,58 m²

