
Tannenallee 147
Klare Linien und eine funktional durchdachte Grundrissplanung verleiht dem Haus seine Struktur. 150 m² verteilen sich auf 2 Geschosse und bieten Platz für individuelle Wohnideen.
Preis ab: Euro
qm Wohnfläche

Erdgeschoss
Wohnfläche EG: 79,42 m²

Windfang 12,75 m²
Abstellraum 2,29 m²
WC 2,29 m²
HWR 5,28 m²
Flur 4,34 m²
DU/WC 3,15 m²
Gast 8,57 m²
Wohnen/Essen 30,06 m²
Kochen 8,94 m²
Terrasse 1,75 m²
Abstellraum 2,29 m²
WC 2,29 m²
HWR 5,28 m²
Flur 4,34 m²
DU/WC 3,15 m²
Gast 8,57 m²
Wohnen/Essen 30,06 m²
Kochen 8,94 m²
Terrasse 1,75 m²
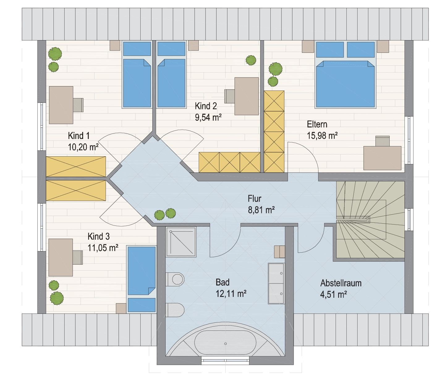
Dachgeschoss
Wohnfläche DG: 72,20 m²

Flur 8,81 m²
Kind 1 10,20 m²
Kind 2 9,54 m²
Eltern 15,98 m²
Kind 3 11,05 m²
Bad 12,11 m²
Abstellraum 4,51 m²
Kind 1 10,20 m²
Kind 2 9,54 m²
Eltern 15,98 m²
Kind 3 11,05 m²
Bad 12,11 m²
Abstellraum 4,51 m²

